0% Magazyn 599 m2 Warszawa Bielany

Magazyn na wynajem
29 072,04 PLN , Pow. 599 m2
Drukuj ofertę
Drukuj ofertę
Typ nieruchomości:
Komercyjny
Powierzchnia:
599 m2
Typ transakcji:
wynajem
Lokalizacja:
Warszawa Bielany , Wólczyńska
Numer oferty:
PE662498
Cena za m2:
48,53 PLN
PRIME ELITE NIERUCHOMOŚCI

0% prowizji!

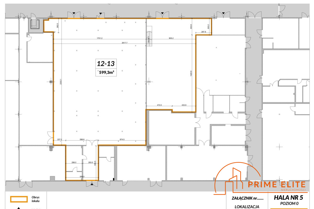
poleca do wynajmu magazyn o pow. 599 m².

Kompleks położony blisko trasy S8, z dogodnym dojazdem dla ciężarówek oraz w bezpośrednim sąsiedztwie transportu miejskiego.

Oferta wynajmu powierzchni:
- Powierzchnia: 599,30 m²,
- Czynsz najmu: 30,00 zł netto/m²,
- Koszty operacyjne (zaliczka): 17,09 zł netto/m²,
- Ogrzewanie (zaliczka): 1,42 zł netto/m² (zaliczka),
- Energia elektryczna: licznik,
- Woda: licznik,
- Korzystanie z toalet: 25 zł netto/m-c od osoby stale przebywającej na powierzchni.
Łączna suma kosztów stałych (czynsz, koszty operacyjne i ogrzewanie): 29 072,04 zł netto/m-c.

Pozostałe warunki:
- Czas trwania umowy: do ustalenia,
- Kaucja: wysokość brutto 3-miesięcznych opłat - czynsz, koszty operacyjne, energia elektryczna i media,
- Parkowanie: samochód osobowy - 190 zł netto/m-c; bus - 430 zł netto/m-c; samochód ciężarowy - 550 zł netto/m-c (interpretacja wg zapisów dowodu rejestracyjnego); Wjazdy do 1h - gratis,
- Oświadczenie 777: w odniesieniu do obowiązku opróżnienia i przekazania Wynajmującemu Przedmiotu Najmu w stanie niepogorszonym po zakończenie najmu, konieczność dostarczenia podpisanego notarialnie oświadczenia o poddaniu się egzekucji w trybie art. 777 § 1 pkt. 4 k.p.c. Oświadczenie jest załącznikiem do umowy najmu,
- Wpłata kaucji i dostarczenie oświadczenia 777 jest warunkiem wydania lokalu.

Udogodnienia:
- Dostęp 24/7,
- Elastyczne warunki najmu,
- Dobra logistyka wewnętrzna: szerokie korytarze ułatwiające transport wózkami paletowymi,
- Industrialny charakter z dużym potencjałem adaptacyjnym,
- Bezpieczeństwo: Całodobowa ochrona i dozór - Twoje mienie jest u nas bezpieczne,
- Funkcjonalność: Możliwość wydzielenia strefy magazynowej, produkcyjnej oraz zaplecza socjalnego.

Zapraszam do kontaktu i na prezentację.
---
Przedstawiona oferta ma charakter informacyjny i nie stanowi oferty handlowej w rozumieniu Art.66 par.1 Kodeksu Cywilnego.
Nieprawidłowy adres E-mail